K23 Architecten
  • Projecten
  • Nieuws
  • Bureau
  • Werkwijze
  • Contact
K23 Architecten
  • Projecten
  • Nieuws
  • Bureau
  • Werkwijze
  • Contact

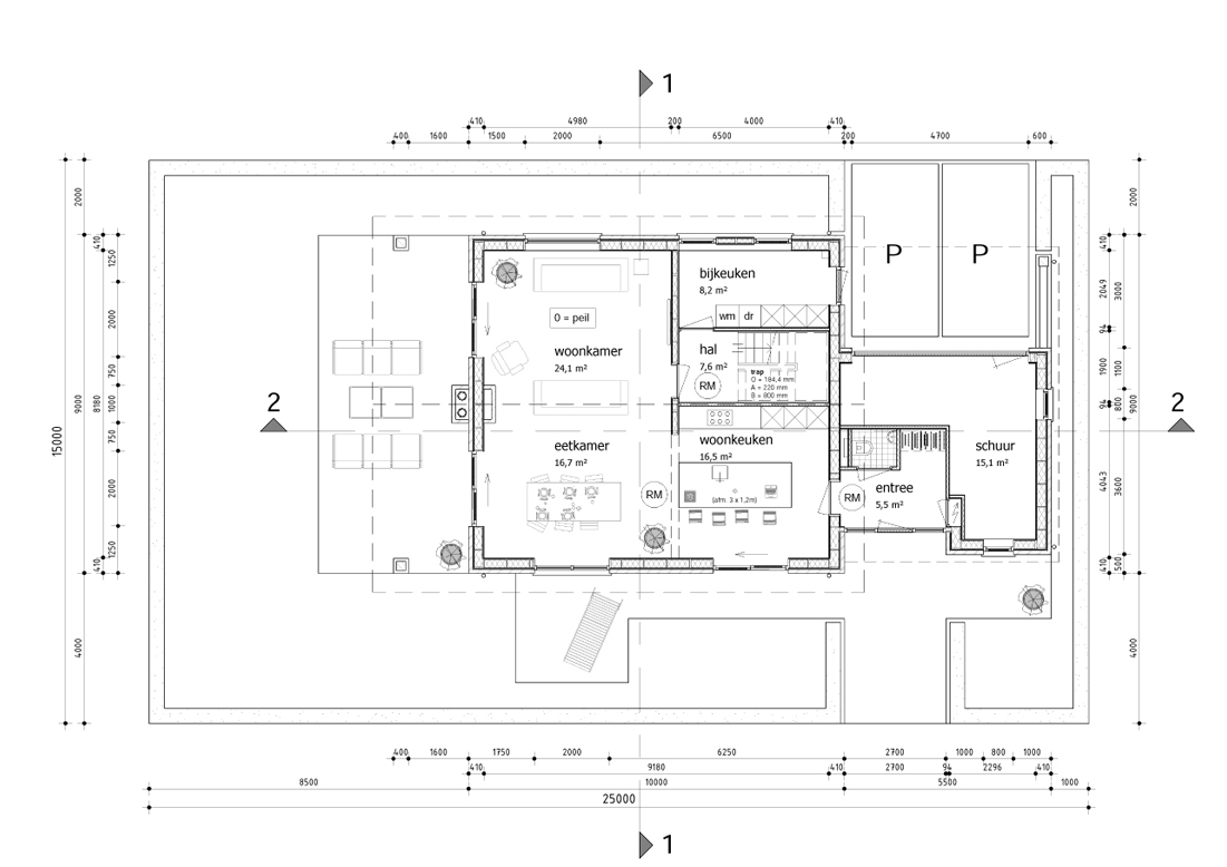
Nieuwbouwwoning Doetinchem

Ontwerp en aanvraag voor de omgevingsvergunning voor het bouwen van een nieuwbouwwoning in Doetinchem. In opdracht van de aannemer wordt de woning gebouwd in HSB. Ruime en strakke woning in moderne kleurstellingen met houten gebint als blikvanger.

  • Projecten
  • Nieuws
  • Bureau
  • Werkwijze
  • Contact
Nieuwbouwwoning Doetinchem
Nieuwbouwwoning Doetinchem
Nieuwbouwwoning Doetinchem
Nieuwbouwwoning Doetinchem
Nieuwbouwwoning Doetinchem
Nieuwbouwwoning Doetinchem